Ad-Design-Archi

Projet suite d’hotel

PROJECT INFORMATION
PROJECT NAME: Hotel suite
CONCEPT: Retro with Modern
DATE: 2013

Hotel suite

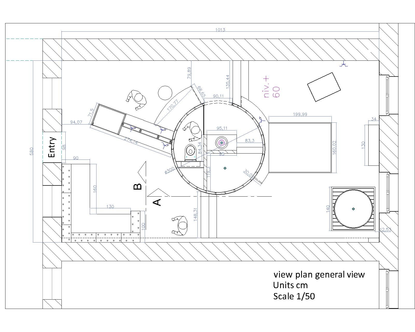
Dans cet espace de 40m² tout s’articule autour de la salle de bain centrale, un espace salon et télévision, un espace bureau séparé et ensuite on monte vers la zone nuit avec son lit king size et son jacuzzi.

L’ambiance est fraîche et le papier peint évoque les gens de passage dans cette suite.

Ad Design Architect est une entreprise offrant des services complets en architecture et design.

Informations de contact
Adresse de bureau
HAUT