













Appartement de vacances à Fréjus
Les clients ont un appartement de vacances à Fréjus, un T2 qu’ils souhaitent réagencer car les enfants sont maintenant adolescents. Et ils veulent par la même occasion lui donner un nouveau look.
CONCEPT
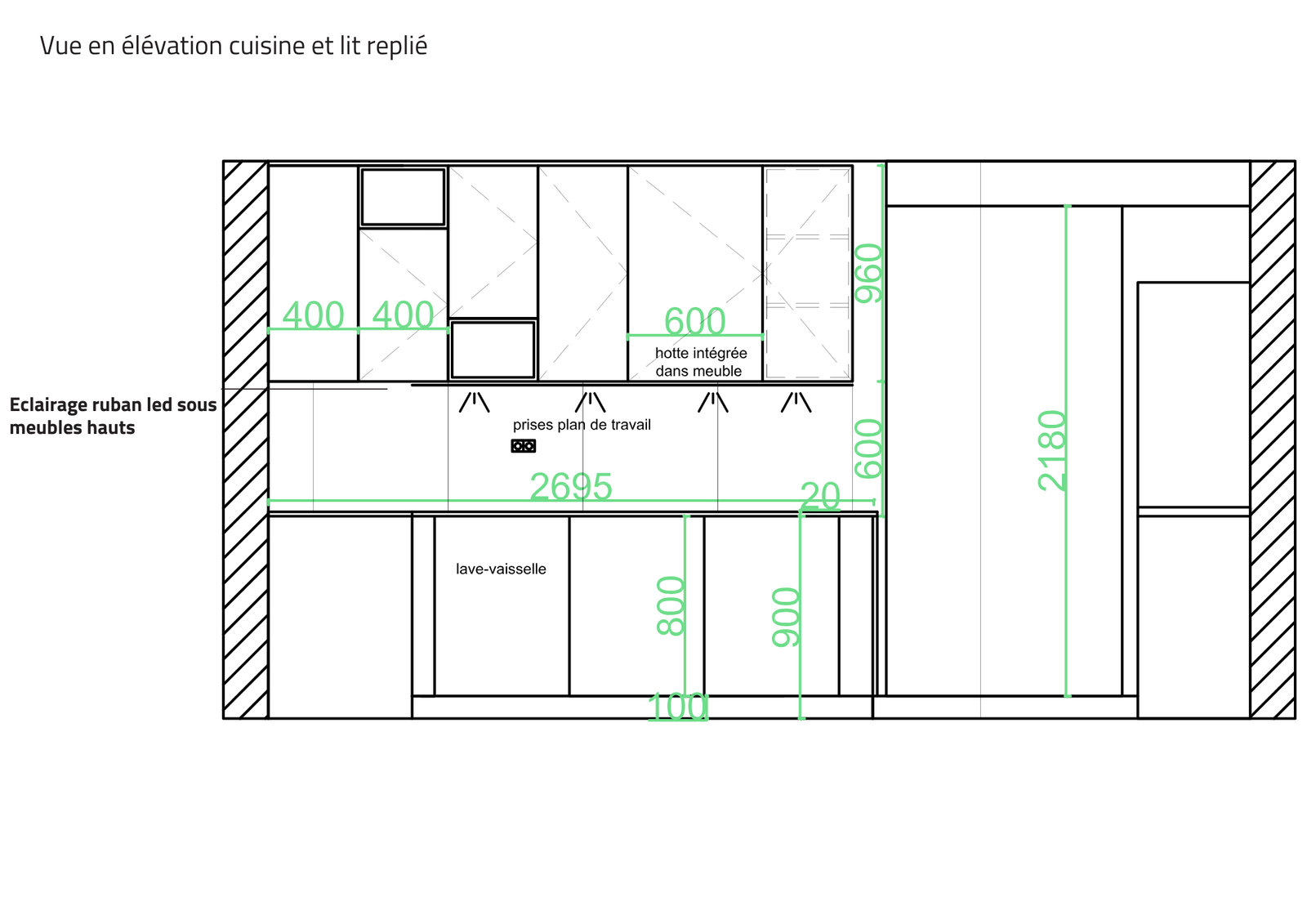
L’idée est de répartir les couchages aux deux opposés du séjour, dans des lits escamotables. Les ados auront chacun leur espace.
- Le jour, lits repliés, une table sur deux pivots prendra place dans le séjour La télévision pourra s’ouvrir à la vue en coulissant un panneau en bois ajouré
- L’ensemble se veut dans une ambiance lumineuse, joyeuse et colorée.
- Un troisième couchage avec fauteuil lit sera possible
L’ensemble des sols sera refait avec un parquet polymère et bois très résistant de la marque Decodecking.
https://www.decodecking.it/fr/indoor/clap/clap-real/
Le budget travaux pour la transformation de cet appartement est de 36000€
Démolitions, évacuation, rénovation complète avec nouvelle salle de bain, nouvelle cuisine et mobilier. Hors installation climatisation.